Håstruplejren
Midt i det naturskønne trekantområde tæt på Elbodalen ligger Håstruplejren…
1.500 DKK per dag
Fra 2.500 DKK per dag
















Kongebakken er placeret i det smukke kuperede terræn i udkanten af Tolne Skov. Skoven – til hvilken der er offentlig adgang – er sammen med de ca. ti tønder land tilgrænsende mark og eng, der hører til lejrcentret, hjemsted for et rigt dyreliv. Udover de mange lejrfaciliteter byder området omkring Kongebakken således på gode naturoplevelser
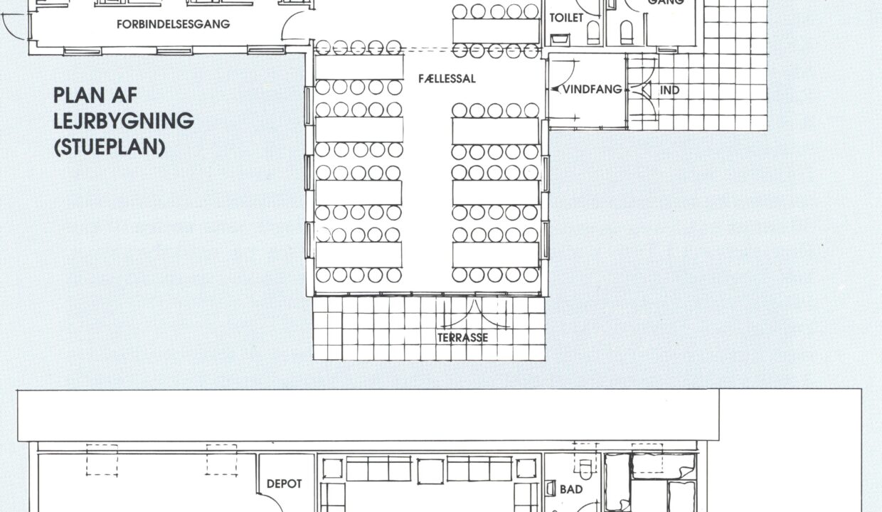
Kongebakken er opført i 1989 og 1. sal indrettet i 1993.
Stueplan er på 420 m2 og indeholder stor spisesal med plads til 80 personer, stort køkken, hyggestue, 3 værelser med 8 sovepladser og eget bad og toilet, 1 værelse med 4 sovepladser og 1 værelse med 2 sovepladser. Disse 2 værelser har fælles bad og toilet.
Der forefindes projektor og lærred i spisesal.
1. sal er på 210 m2 og indeholder stort aktivitetsrum med bordtennis, hems med borde og sofaer, 1 værelse med 4 sovepladser og eget bad og toilet.
Kongebakken byder på fantastisk gode udendørs aktivitetsmuligheder, hvor der bl.a. kan nævnes mindre foldboldbane, håndboldbane, bålsted, samt legeplads til de mindre børn. Legepladsen er opført af Indu A/S og opfylder alle sikkerhedskrav. I forlængelse af bygningerne er der opført stor overdækket grill med plads til 15 – 20 personer. Herudover er der på lejrcentrets areal desuden en børnevenlig sø, der gennemstrømmes af et mindre vandløb. Søen er kun ca. 70 cm dyb. På en lille ø midt i søen findes lille bålsted og 3 shelters.
Der forefindes ladestander på parkeringspladsen. Ladekort opbevares i nøgleboks inde på Kongebakken og forbruget afregnes automatisk over elforbruget.
Pris pr. døgn i hverdage for indtil 34 overnattende personer: kr. 2.500,00
Ankomst kl. 12.00 Afrejse kl. 12.00
Pris for weekend for indtil 34 personer: kr. 5.900,00
Ankomst fredag kl. 17.00 Afrejse søndag kl. 17.00
Pris for uge indtil 34 personer: kr. 13.000,00
Ankomst lørdag kl. 17.00 Afrejse lørdag kl. 10.00
El/varmeforbrug betales i alle perioder med pr. kWh: kr. 5,00
Er der efter 1/1 ledige uger i indeværende år, kan weekends og enkeltdage også lejes i perioden.
Midt i det naturskønne trekantområde tæt på Elbodalen ligger Håstruplejren…
1.500 DKK per dag
| Cookie | Varighed | Beskrivelse |
|---|---|---|
| cookielawinfo-checbox-analytics | 11 months | This cookie is set by GDPR Cookie Consent plugin. The cookie is used to store the user consent for the cookies in the category "Analytics". |
| cookielawinfo-checbox-functional | 11 months | The cookie is set by GDPR cookie consent to record the user consent for the cookies in the category "Functional". |
| cookielawinfo-checbox-others | 11 months | This cookie is set by GDPR Cookie Consent plugin. The cookie is used to store the user consent for the cookies in the category "Other. |
| cookielawinfo-checkbox-advertisement | 1 year | The cookie is set by GDPR cookie consent to record the user consent for the cookies in the category "Advertisement". |
| cookielawinfo-checkbox-necessary | 11 months | This cookie is set by GDPR Cookie Consent plugin. The cookies is used to store the user consent for the cookies in the category "Necessary". |
| cookielawinfo-checkbox-performance | 11 months | This cookie is set by GDPR Cookie Consent plugin. The cookie is used to store the user consent for the cookies in the category "Performance". |
| viewed_cookie_policy | 11 months | The cookie is set by the GDPR Cookie Consent plugin and is used to store whether or not user has consented to the use of cookies. It does not store any personal data. |